Machine de mise en balles automatique de chemin de câbles
      
                1. Améliorer l'efficacité de la production : la presse à balles automatique adopte un système d'exploitation automatisé, qui peut compléter en continu l'action de mise en balles, augmentant considérablement la vitesse de production. Par rapport à l’emballage manuel, il est plus efficace et contribue à raccourcir le cycle de production.
2. Économisez sur les coûts de main-d'œuvre : la presse à balles automatique peut remplacer plusieurs travailleurs manuels pour les opérations d'emballage, réduisant ainsi l'investissement de l'entreprise en ressources humaines et réduisant les coûts de main-d'œuvre.
Principaux composants et paramètres
Nom Description
Le corps principal du cadre est soudé à partir de tubes carrés de 80x80x3
Les bandes transporteuses sont toutes constituées de bandes transporteuses antidérapantes épaissies
La plaque du levier tournant Q235 est découpée et traitée au laser
L'ascenseur de retournement de matériaux est alimenté par un levage pneumatique
Les arbres d'entraînement sont tous en acier 45# et la surface est plaquée de Luo.
Les glissières adoptent des rails carrés de précision
Vis 2525 vis à billes
Servomoteur de levage
La presse thermofusible
Nom Description
Alimentation, puissance 220v/50Hz 500w
Vitesse d'emballage ≤ 1,5 secondes/voie
Épaisseur de sangle applicable (0,45-1,0) mm*largeur (9-15) mm
Caractéristiques : Ne perdez jamais la bande, détection électronique
Affichage CNC, opération simple
Les normes relatives aux accessoires sont basées sur Milan, Allemagne
Partie traction
Nom Description
Le corps principal du cadre est soudé à partir de tubes carrés de 80x80x3
Servomoteur de puissance mobile avec réducteur et transmission à crémaillère et pignon
La glissière est en acier 45#, avec traitement thermique à haute fréquence et placage Luo sur la surface. Il possède un siège en aluminium épaissi et est équipé d'un curseur allongé.
Le serrage adopte un cylindre modèle TN pour empêcher la rotation
Partie palettisation
Nom Description
Le corps principal du cadre est soudé à partir de tubes carrés de 80x80x3
Le corps principal du robot est constitué de profilés en aluminium épais et robustes.
Le manipulateur adopte d'abord la forme de fourche puis de pression pour assurer la fermeté de préhension et la stabilité du mouvement.
Le rouleau mobile de palette est en acier 45#, surface plaquée, solide de φ45mm
Règle rotative : Afin de garantir l'équerrage de chaque pile de quilles et de ne pas rayer les quilles lors du déplacement, une règle ronde est sélectionnée et équipée d'un roulement rotatif à l'intérieur.
⑤Armoire électrique
Nom Quantité Marque Modèle
PLC 1 contrôle d'affichage
Contrôle d'affichage de l'extension PLC 2
1 commande d'affichage par écran tactile
Interrupteur de proximité plusieurs NPN, 24VDC, normalement ouvert
Interrupteur photoélectrique plusieurs NPN, 24VDC, normalement ouvert
Électrique basse tension 1 Chint
Servomoteur 4 Hechuan 0,75kw
La plupart des moteurs d'équipement utilisent des servomoteurs pour rendre l'équipement plus rapide et plus flexible.
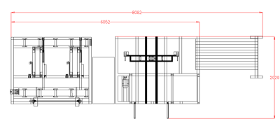
La longueur de l'équipement est d'environ 6 mètres, la longueur d'empilage est de 2 mètres et la longueur totale est d'environ 8 mètres.
Largeur environ 2,9 mètres

                                            
                                                                                        
                                        
                                            
                                                                                        
                                        
